隔音降噪_柴油发电机组噪声处理工程技术规范(一)
在生活区,商务大楼等地方安装备用柴油发电机组,还需要对柴油发电机组噪声进行处理,以免影响周围人们的生活。所以在闹市等地区环境要求较高的地方要严格按照该地区环保法律法规即《城市区域环境噪声标准》精心设计处理避免给自己带来不必要的纠纷。广西发电机厂家电力先进的降噪消声装置对进、排风通道和排气系统进行降噪处理,确保机组在满足通风条件,不降低机组输出功率的前提下,完全满足国家标准对环境噪声的要求。
柴油发电机组噪声处理工程技术规范内容如下:
适用范围
本标准规定了柴油发电机组噪声处理工程的设计、施工、验收以及运行管理的技术要求,可作为环境影响评价、可行性研究、设计施工、环境保护验收及建成后运行与管理的技术依据。
规范性引用文件
(1)环境保护有关法律法规
(2)《声环境质量标准》(GB33096-2008)
(3)《工业企业厂界环境噪音排放标准》(GB12348-2008)
总体设计
(1)发电机组噪声应达到国家标准《城市区域环境噪声标准》(GB 3097-93)中各区域类别相应的噪声排放标准。
(2)应根据企业柴油发电机的位置、机房空间结构、发电机组功率和数量等实际情况确定柴油发电机噪声处理工程的处理规模和处理工艺,做到保护环境、经济合理、技术可靠。
(3) 处理工程技术方案的选择应符合环境影响评价报告书批复文件的要求,柴油发电机组噪声处理后应稳定达到有关国家和地方排放标准的规定。
柴油发电机组噪声处理工艺技术要求
柴油发电机组噪声主要包括发动机的排气噪声、进气噪声、燃烧噪声、连杆及活塞、齿轮等运动件在工作时的往复高速运动和撞击而产生的机械噪声、冷却水排风扇气流噪声。柴油发电机组的综合噪声很高,根据功率大小,一般高达100-125dB(A)
柴油发电机噪声治理方法包括进风、排风、燃气排气通道的消声处理、机房内的吸声处理、机房的隔声处理等。
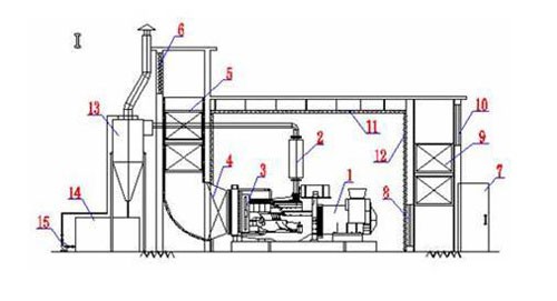
柴油发电机(风冷式)噪声治理平面示意图

1-柴油机 2-自配排烟消声器 3-冷却风扇 4-柔性接头 5-排风消声器 6-排风百叶窗 7-隔声门 8-进风百叶窗II 9-进风消音器 10-进风百叶窗I 11-吸音天花 12-吸音壁 13-烟尘净化器 14-循环水箱 15-喷淋水泵 16-油箱。
柴油发电机(风冷式)噪声治理工艺立面图

1-柴油机 2-自配排烟消声器 3-冷却风扇 4-柔性接头 5-排风消声器 6-排风百叶窗 7-隔声门 8-进风百叶窗II 9-进风消音器 10-进风百叶窗I 11-吸音天花 12-吸音壁 13-烟尘净化器 14-循环水箱 15-喷淋水泵。
以上信息来由广西发电机组厂家电力收集整理,电力十多年老品牌企业,供应的柴油发电机组功率范围为功率为20kw-2000kw,拥有电气、降噪静音、环保等各方面的专业技术人员,可根据客户需要提供自启动、并机及微机监控等配套设备,可提供静音及移动拖车柴油发电机组。从机房设计、安装调试、降噪工程、机组维修保养、配件供应等成套服务,满足了用户的电力需求,热线:13667715899
报价:13667715899
推荐文章
- 300KW沃尔沃柴油发电机组:为何成为众多工程的首选动力? 2026-03-16
- 同样是150kw,为何它更可靠?因为有一颗强劲的“芯”!沃尔沃柴油发电机组,守护您的业务不断电 2026-03-14
- 动力巨擎,智控机组——400KW上柴柴油发电机组,重新定义你的电力保障标准! 2026-03-13
- 400KW上柴柴油发电机组,工业级电力保障的王者之选 2026-03-13
- 动力巨擎,应急先锋——康明斯720KW柴油发电机组,如何定义“可靠”? 2026-03-12
- 工厂备电选多大?直接上硬货:这台500kW玉柴发电机组,让电力永不掉线 2026-03-11
- 2026备电选多大?为什么懂行的老板都选这台500kW发电机组? 2026-03-11
- 停电不焦虑,这台康明斯250KW柴油发电机组才是工厂的底气! 2026-03-10
- 38升V12“心脏”!800KW康明斯发电机组,如何成为高端项目的“必备电力设备”? 2026-03-09
- 关键时刻,康明斯400KW发电机组,为你的核心负载提供可靠且稳定的保障! 2026-03-07






桂公网安备45010702002247